耐震化対応のため成26年(2014年)に閉館した市立中央公民館が、末広中央公園横(末広町)に移転し、いよいよ12月2日に施設の一部がオープンします(第1期開館)。
各部屋の使用は12月4日(月)から使用可能なり、11月20日(月)10時から使用申請が始まる(ホールのみ11月6日(月)より開始)。
各部屋使用期間:平成29年12月4日(月)~来年平成30年1月7日(日)
日時:11月20日(月)10時~ ※11月21日以降は教育委員会社会教育課で受付(土日祝除く)。
場所:市役所2階 2-4会議室
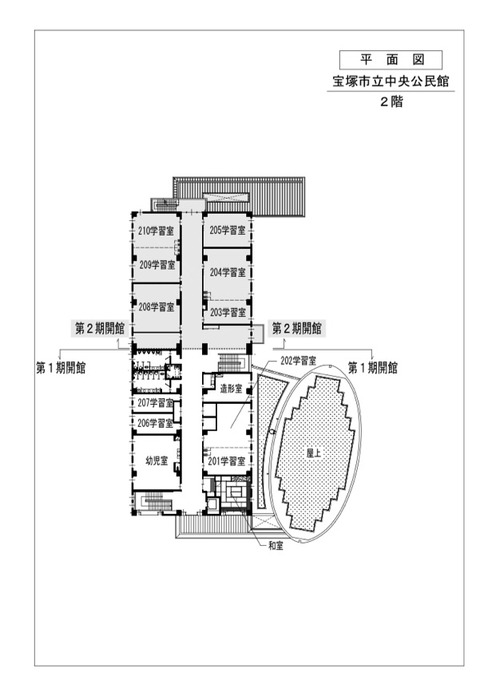
第1期開館時に事前申請の上、使用可能な部屋◎ホール(200人)◎レク・ルームA(25人)◎201学習室(24人)◎202学習室(36人)◎206学習室(12人)◎207学習室(12人)◎和室(20人)◎幼児室(35人)◎造形室(18人)
※()内は定員です。
詳しくは宝塚市ホームページをご覧ください。→http://www.city.takarazuka.hyogo.jp/kyoiku/kominkan/1022299.html
12月2日(土)には第1期開館セレモニー、3日(日)には公民館市民セミナー「アドリブ講演会」も開催されます。
「第1期開館セレモニー」
日時:12月2日(土曜日)10時から(9時30分開場)
場所:市立中央公民館(市役所前)
内容:テープカット、宝塚合唱連盟の皆さんによるコーラス、クロマチックハーモニカ奏者 南 里沙さんによる演奏など。※事前予約は不要です。当日直接開場へ。(先着100人)※手話通訳、要約筆記あり。
詳しくは宝塚市ホームページをご覧ください。
→http://www.city.takarazuka.hyogo.jp/kyoiku/kominkan/1021965.html
関連記事
10/1 公民館建築工事 ビフォー・アフター
https://www.brali-takarazuka.com/archives/kouminkan171001.html
7/26 宝塚市中央公民館 外観イメージ
https://www.brali-takarazuka.com/archives/kominkan170726.html
6/4 宝塚市中央公民館建築工事
https://www.brali-takarazuka.com/archives/2187870.html



















